A while ago arcbazar.com held a competition for the design of a prayer space. The Muslim community at Quincy, MA need a prayer hall attached to their existing facility, where both men and women can converge for their daily namaaz.
My proposal came in second…:)
The project was bagged by Daniel Andersson of Finland who visualized an introspective concrete structure with a beautifully lighted ceiling and an internal garden.
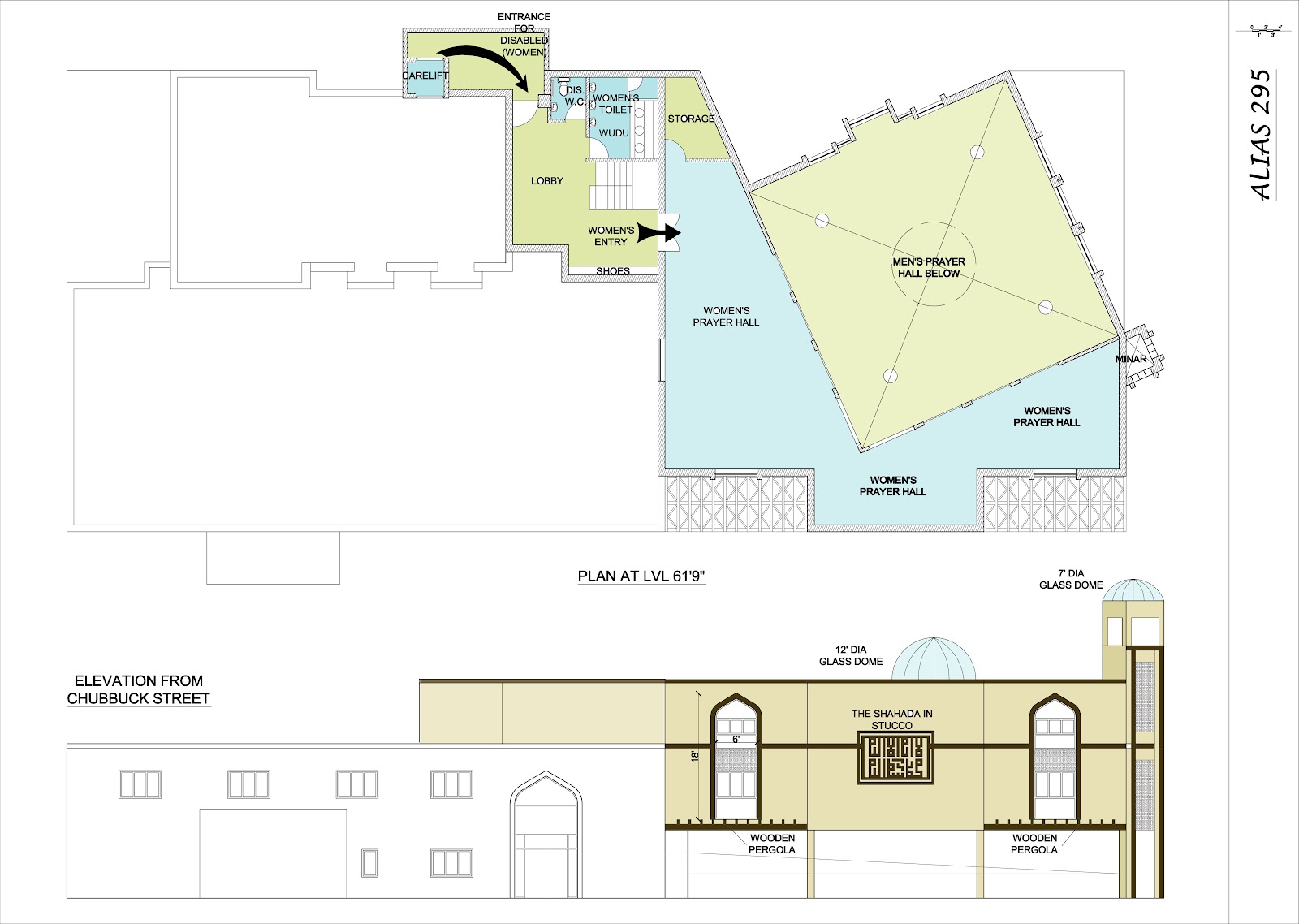
My idea was more traditional. It included a central double height prayer hall with large windows and a glass dome.


I am loving all the ‘likes’..a great confidence booster.
I found this poem scribbled in my diary, written during one of those dark periods of my college days:
The mysteries of the world and architecture
grow and multiply before I can
grasp the tail of the creature
and sweep myself into its bowels.
I want to learn the language
and here I am grappling with the vowels!
Doors that once led out
are slamming shut.
The enchanted woods of knowledge
whisper enticements but
the rocky road
winds long and far.
With my limp,
I am praying for a car!
—
To view original post please click here.
To view all competition entries please click here.





